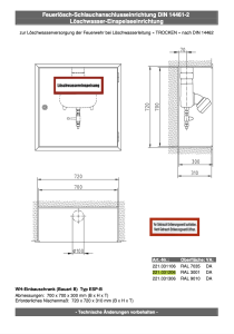
Wandhydranten
Wandhydranten zählen zu den wichtigsten Brandbekämpfungseinrichtungen.
Typ F ist auch für die Feuerwehr geeignet und der Typ S Wandhydrant, S steht für Selbsthilfe, ist speziell für die Brandbekämpfung durch dein Laien ausgelegt.
Bei uns im Webshop finden Sie beide Modelle und umfangreiches Wandhydrantenzubehör.
Bei uns kaufen Sie ohne Risiko! Wir sind ein Fachhandel bei dem Beratung und Kundenservice groß geschrieben wird. Der Versand erfolgt in Deutschland natürlich ”Frei Haus” und das ohne Mindestbestellwert! Ebenso bieten wir Zahlung auf Rechnung an.
				121 bis 180 (von insgesamt 180)
			
		 
			 
																									 
																									 
																									 
											
										 
											
										 
											
										.png) 
											
										 
											
										 
											
										 
											
										 
											
										 
											
										 
											
										 
											
										 
											
										 
											
										 
											
										 
											
										  Wandhydrantenschrank ( Ständer, Füße, Standfuß).png) 
											
										  Wandhydrantenschrank ( Ständer, Füße, Standfuß) 1.png) 
											
										 
											
										 
											
										 
											
										 
											
										.png) 
											
										 
											
										 
											
										 
											
										 
											
										 
											
										 
											
										 
											
										 
											
										 
											
										 
											
										 
											
										 
											
										 
											
										 
											
										 
											
										 
											
										 
											
										 
											
										 
											
										 
											
										 
											
										 
											
										 
											
										.jpg) 
											
										 
											
										 
											
										 
											
										 
											
										 
											
										 
											
										 
											
										 Einspeiseschrank, rot,  DIN14461-2.png) 
											
										 
											
										 
											
										 
											
										 
											
										 
											
										.jpg) 
											
										 
											
										 
											
										 
											
										 
											
										 
											
										 
											
										 
											
										 
											
										 
											
										 
											
										 
											
										 
											
										 
											
										 
											
										 
											
										 
											
										 
											
										 
											
										 
											
										 
											
										 
											
										 
											
										 
											
										 
											
										 
											
										 
											
										 
											
										